• Català
  • Español
  • English
logo
  • Welcome
  • Projects
  • Team
  • Books
  • Contact
  • Català
  • Español
  • English

POSTIGO HOUSE

In Housing

POSTIGO HOUSE

Premio “Ciutat de Badalona” 1989.
Selección FAD 89.

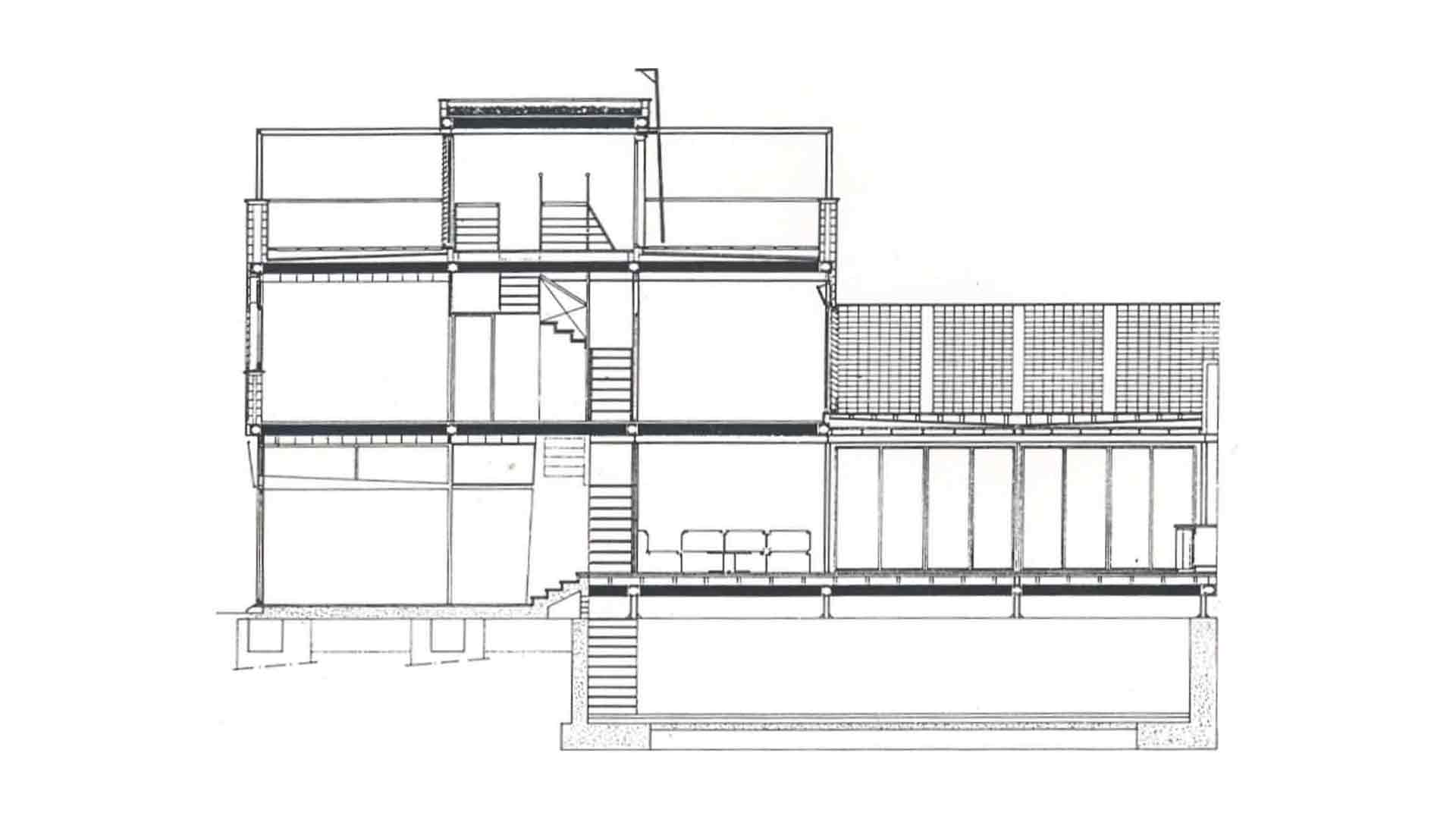
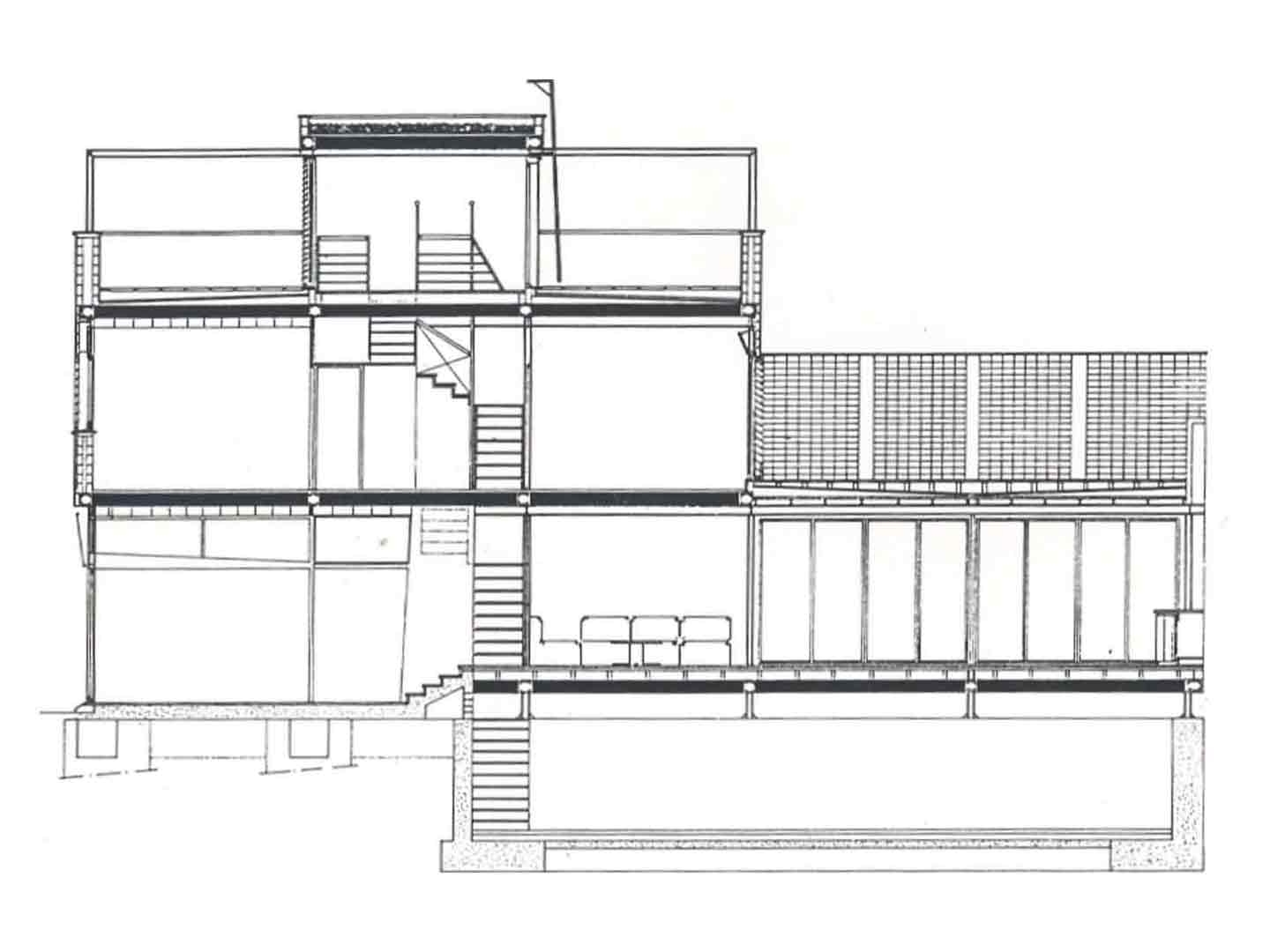
El proyecto quiere dar una respuesta alejada de cualquier pretendido tradicionalismo, haciendo compatibles actitudes de la modernidad con la vieja estructura tipológica i parcelaria del lugar. La aparición del aparcamiento en la vivienda entre medianeras, el análisis y el estudio del patio interior, así como la adecuación a una ordenanza muy restrictiva, han sido los factores condicionantes del proyecto. La estructura se formaliza mediante una trama metálica independiente de los muros de medianera, que define, mediante varias crujías, los diferentes usos de la vivienda.


Año1984-87LocalizaciónBadalona

Share
  • ROCA I PI NURSING HOME

© 2026 MOLINER OFFICE ARCHITECTS