• Català
  • Español
  • English
logo
  • Benvingut
  • Projectes
  • Equip
  • Llibres
  • Contacte
  • Català
  • Español
  • English

C. PI I MARAGALL AMB ALFONS XII, BADALONA

In Habitatges

C. PI I MARAGALL AMB ALFONS XII, BADALONA

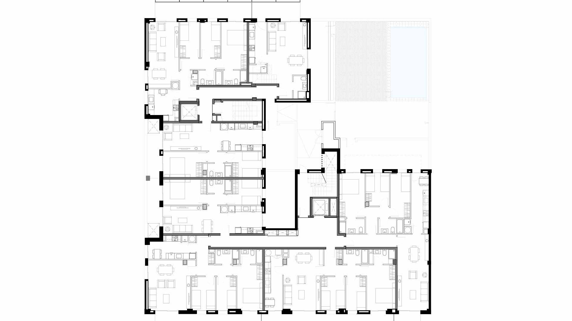
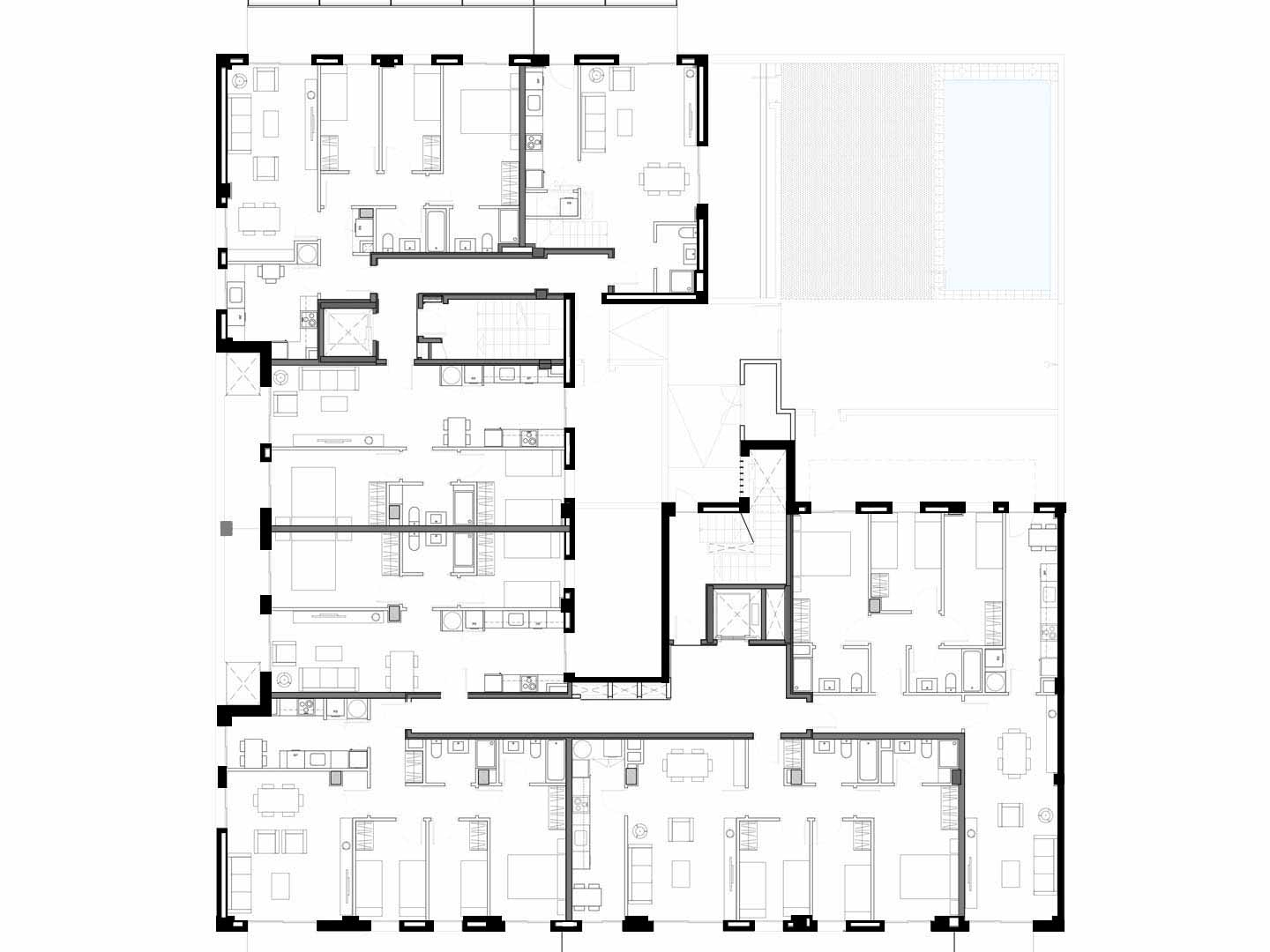
Projecte d’edifici plurifamiliar de 34 habitatges i 1 local comercial, situat al Canal Marítim del Port de Badalona.


Año2019-2020ClienteCONSTRUCTORA VIPS 2000 S.L.LocalizaciónBadalona

Share
  • REFORMA CENTRE COMERCIAL - SOM MULTIESPAI, BARCELONA
  • C. MESTRE JOAN CORRALES, CENTRE MÈDIC IRITEB

© 2026 MOLINER OFFICE ARCHITECTS