• Català
  • Español
  • English
logo
  • Benvingut
  • Projectes
  • Equip
  • Llibres
  • Contacte
  • Català
  • Español
  • English

C. DE PUJOL, BADALONA

In Habitatges, Habitatges

C. DE PUJOL, BADALONA

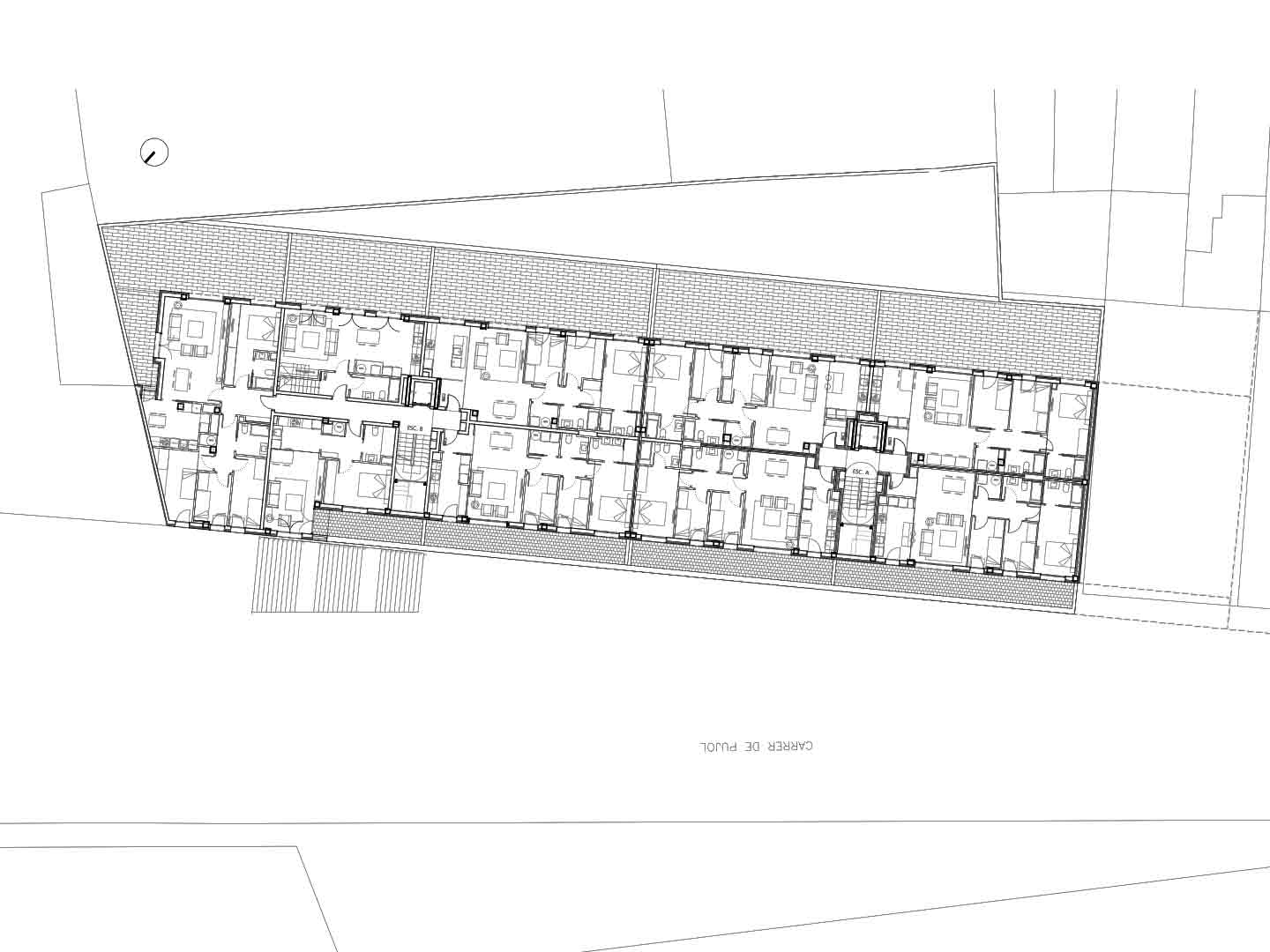
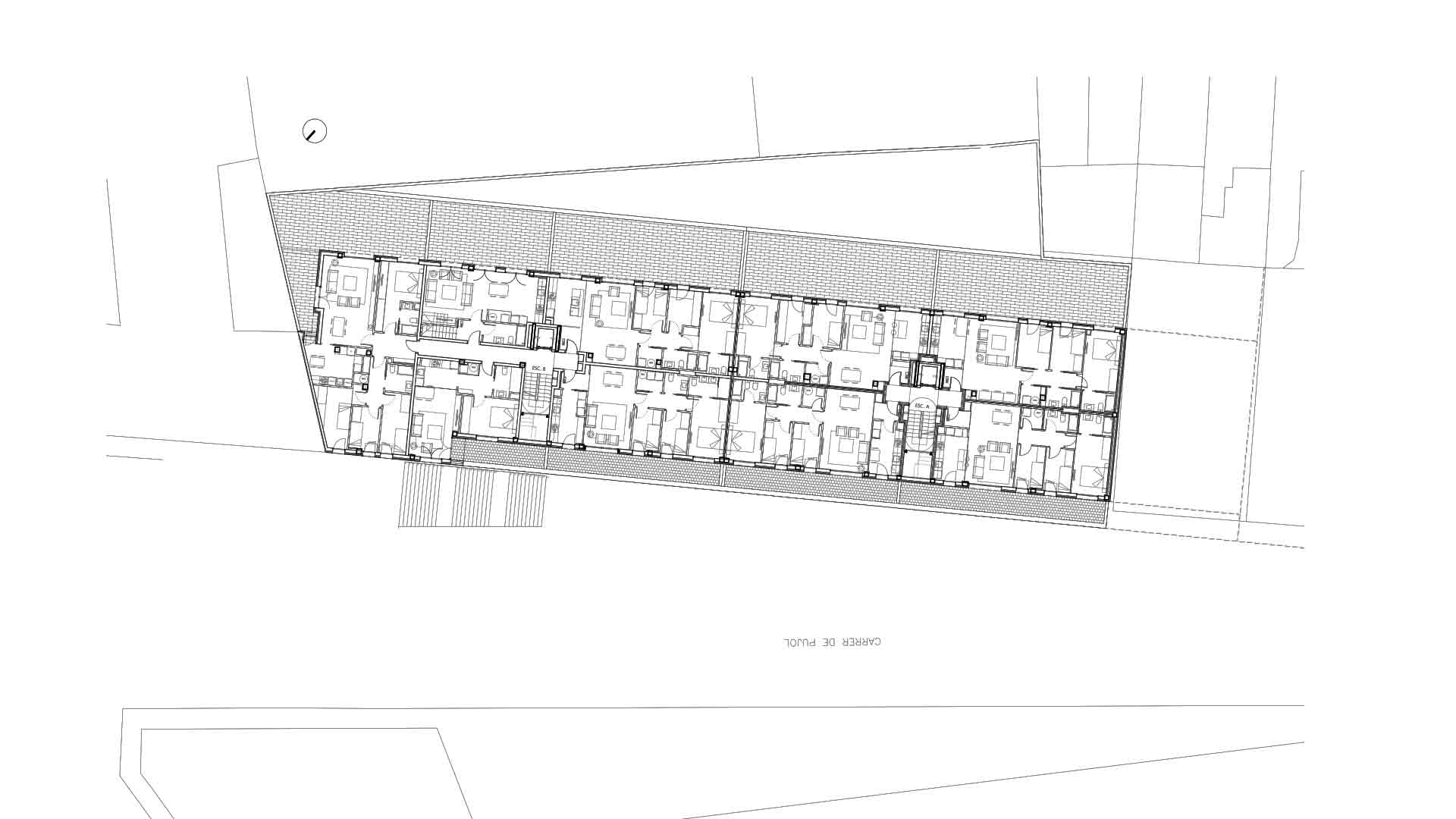
Edifici plurifamiliar de 22 habitatges situat a la ciutat de Badalona.
L’edifici s’ha construït a sobre d’una zona protegida pel seu interès arqueològic i està compost per 3 plantes sobre rasant i 2 sota rasant.


Año2021-2023ClienteE PLUS HOMES AND HEALTH S.A.LocalizaciónBadalonaDetalles22 Habitatges

Share
  • C. ROGER MAS, SANT CUGAT DEL VALLÈS
  • AVINGUDA MARESME, MATARÓ

© 2026 MOLINER OFFICE ARCHITECTS