• Català
  • Español
  • English
logo
  • Benvingut
  • Projectes
  • Equip
  • Llibres
  • Contacte
  • Català
  • Español
  • English

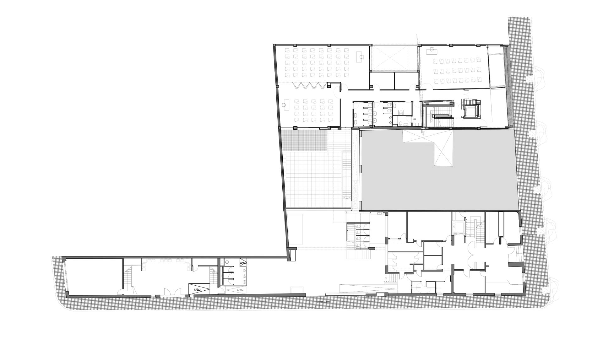
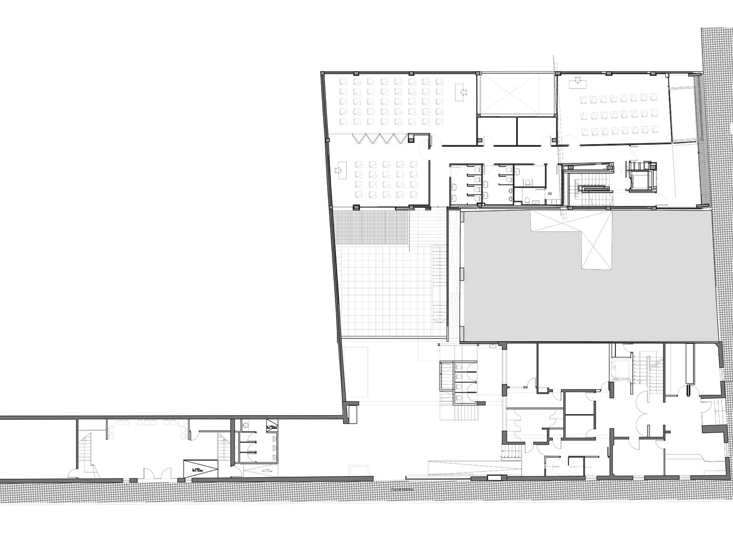
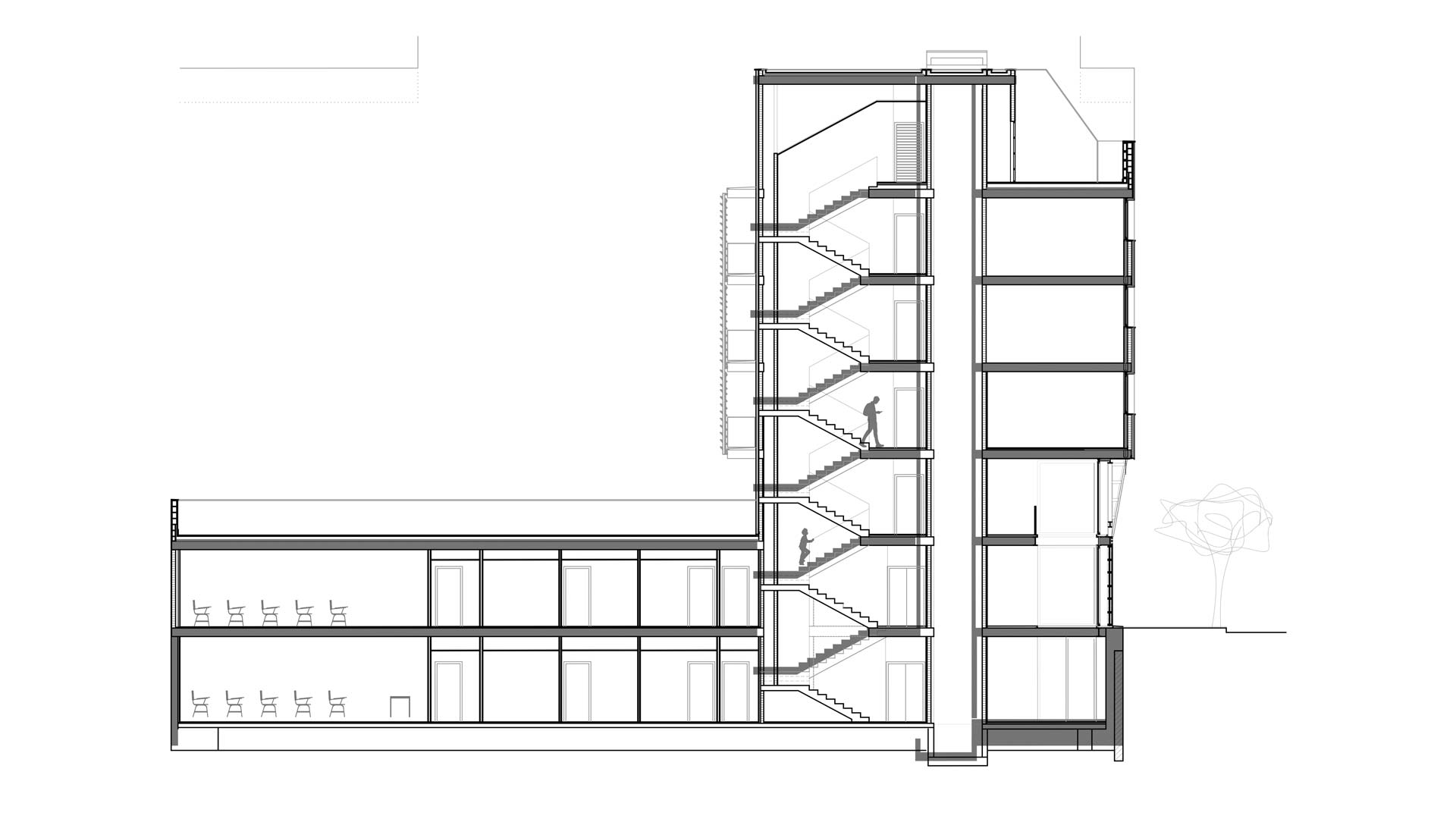
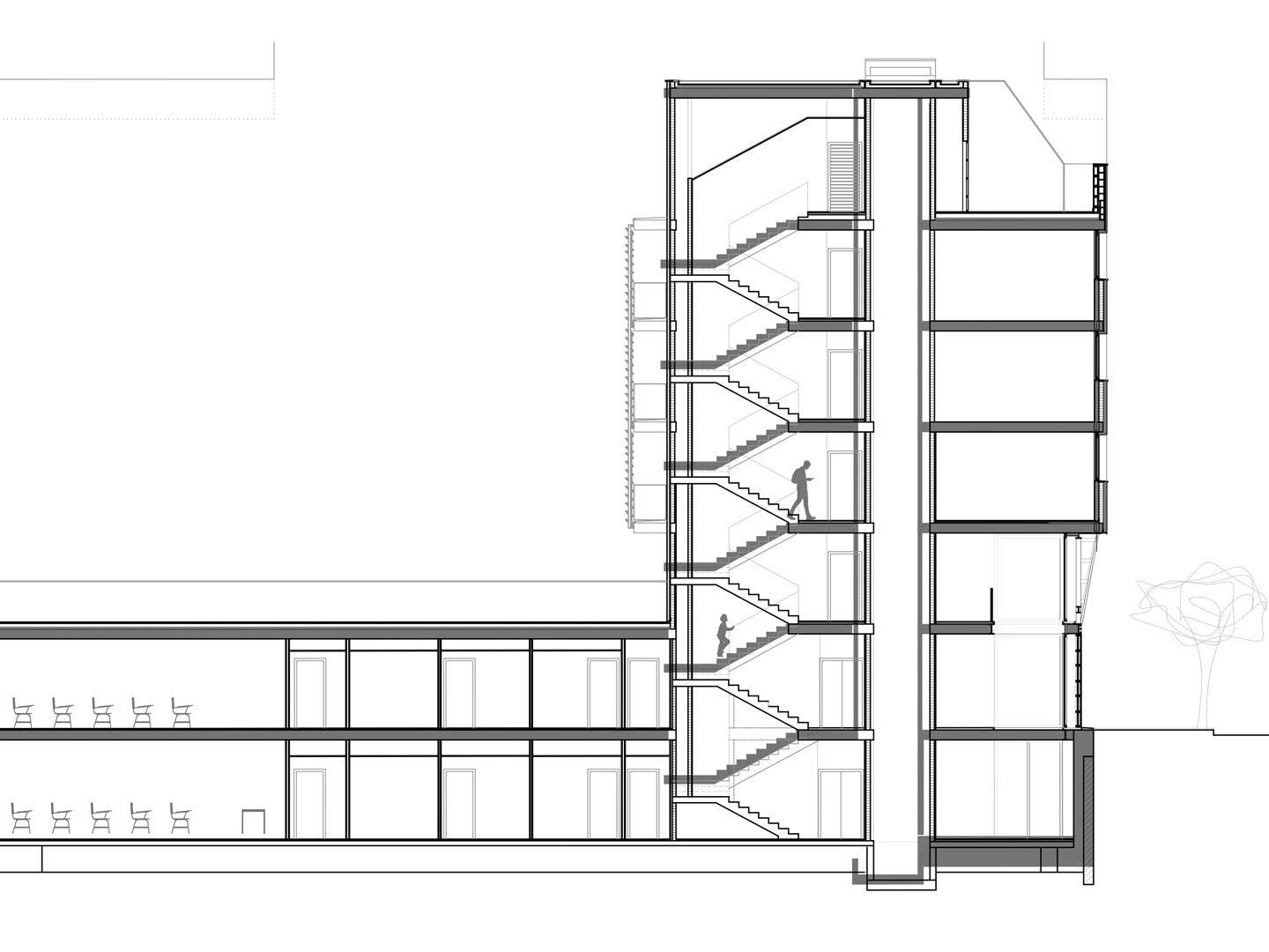
COL·LEGI BADALONÈS

In Equipaments, Equipaments

COL·LEGI BADALONÈS

Colegio Badalonés, edificio de uso docente en Badalona.


Año2024-25LocalizaciónBadalona

Share
  • PL. JOAN FIVELLER, MATARÓ
  • PG. MUNDET, SANT ANTONI DE CALONGE

© 2026 MOLINER OFFICE ARCHITECTS